loader picture

Company Short info

user

Costa Cruises

Need Help for any Details?

Popular ports for this liner

About Cruise liner

Welcome aboard Costa Serena!

You are about to embark on a cruise ship inspired by the myths and legends of antiquity. The ship’s interiors are decorated with images of ancient Greek gods, giving your journey a unique atmosphere of grandeur and refined elegance. Every detail on board is designed for your comfort and memorable experiences.

Each day of the cruise is filled with new emotions and events. You can stroll along the spacious decks, enjoy sunsets over the sea, watch spectacular theatrical and musical shows, relax in the Samsara Spa and relaxation areas, and savor exquisite Italian and international cuisine. For children, there are play clubs and pools, while adults can fully unwind and enjoy the luxurious atmosphere.

Costa Serena offers everything you need for a comfortable holiday:

  • Approximately 1,500 cabins on board, including more than 500 with balconies, as well as spacious suites, penthouses, and Samsara cabins with direct access to the spa.
  • Four swimming pools, two of which have retractable glass roofs, and five outdoor jacuzzis.
  • Five restaurants, including the elegant Club Bacco and Samsara Restaurant for gourmets.
  • Thirteen bars with a unique atmosphere, including Cognac & Cigar Bar, Coffee & Chocolate Bar, and stylish lounges.
  • Samsara Spa offers a sauna, Turkish bath, modern gym, and a wide range of wellness treatments.
  • Entertainment includes the three-tiered Jupiter Theatre, a casino, Pan Disco nightclub, Formula 1 simulator, 4D cinema, video game zones, sports facilities, jogging track, and shops.
  • For children and teenagers, there are play areas, clubs, and pools.
  • In the evening, you can visit the theatre, try your luck at the casino, dance at the disco, or relax in one of the cozy bars.

High-speed internet via Starlink from SpaceX ensures connectivity even at sea.

The C-Dream service makes it easy and convenient to book your next cruise, while C|Club members enjoy additional privileges and discounts.

A journey on Costa Serena combines elegance, comfort, and a wide variety of entertainment. Your days will be filled with discoveries, joy, and unforgettable moments.

Build Year : 2007
Renew Year : 2023
Width : 35.00
Length : 290.00
Speed : 23.00
Capacity : 3780
Deck Quantity : 14
Cabin Quantity : 1507
Restaurant Quantity : 5
Lift Quantity : 18
Pool Quantity : 8
Balancer : Yes
I1 INTERIOR, Decks 1-2
Shower Bath
Free Food

  • Size: 9-12 sq. m. Interior cabin (no window), decks 1-2
  • Private bathroom with shower
  • Up to 4 beds
  • 1 double bed (or 2 single beds). For the 3rd/4th guest, 2 upper pull-down beds are available. (DORELAN mattresses)
  • Adjustable air conditioning with thermostat
  • Interactive flat-screen TV with satellite channels
  • Hairdryer
  • Safe (height 26 cm | width 35 cm | depth 25 cm)
  • Wi-Fi connection (at a charge)
  • Toiletries
  • Bed linen provided for your stay (sheets and towels)
  • Beach and pool towel
  • Power outlets: 220–110 Volts / 60 Hz

Size, layout, and furnishings may slightly vary from those shown (within this cabin category).

I2 INTERIOR, Decks 1-2, 6-7
Shower Bath
Free Food

  • Size: 9-14 sq. m. Interior cabin (no window), decks 1-2, 6-7
  • Private bathroom with shower
  • Up to 4 beds
  • 1 double bed (or 2 single beds). For the 3rd/4th guest, 2 upper pull-down beds are available. (DORELAN mattresses)
  • Adjustable air conditioning with thermostat
  • Interactive flat-screen TV with satellite channels
  • Hairdryer
  • Safe (height 26 cm | width 35 cm | depth 25 cm)
  • Wi-Fi connection (at a charge)
  • Toiletries
  • Bed linen provided for your stay (sheets and towels)
  • Beach and pool towel
  • Power outlets: 220–110 Volts / 60 Hz

Size, layout, and furnishings may slightly vary from those shown (within this cabin category).

I3 INTERIOR, Decks 6-10
Shower Bath
Free Food

  • Size: 10-14 sq. m. Interior cabin (no window), decks 6-10
  • Private bathroom with shower
  • Up to 4 beds
  • 1 double bed (or 2 single beds). For the 3rd/4th guest, 2 upper pull-down beds are available. (DORELAN mattresses)
  • Adjustable air conditioning with thermostat
  • Interactive flat-screen TV with satellite channels
  • Hairdryer
  • Safe (height 26 cm | width 35 cm | depth 25 cm)
  • Wi-Fi connection (at a charge)
  • Toiletries
  • Bed linen provided for your stay (sheets and towels)
  • Beach and pool towel
  • Power outlets: 220–110 Volts / 60 Hz

Size, layout, and furnishings may slightly vary from those shown (within this cabin category).

I4 INTERIOR, Decks 6-10
Shower Bath
Free Food

  • Size: 10-14 sq. m. Interior cabin (no window), decks  6-10
  • Private bathroom with shower
  • Up to 4 beds
  • 1 double bed (or 2 single beds). For the 3rd/4th guest, 2 upper pull-down beds are available. (DORELAN mattresses)
  • Adjustable air conditioning with thermostat
  • Interactive flat-screen TV with satellite channels
  • Hairdryer
  • Safe (height 26 cm | width 35 cm | depth 25 cm)
  • Wi-Fi connection (at a charge)
  • Toiletries
  • Bed linen provided for your stay (sheets and towels)
  • Beach and pool towel
  • Power outlets: 220–110 Volts / 60 Hz

Size, layout, and furnishings may slightly vary from those shown (within this cabin category).

E1 Oceanview, Deck 1-2
Shower Bath
Free Food

  • Size: 13-15 sq. m, cabin with sea view, Decks 1-2
  • Up to 4 beds
  • Private bathroom with shower
  • 1 double bed (or 2 single beds), 1 sofa bed. 2 high folding beds are available for 3rd/4th guests. (DORELAN mattresses)
  • Window (cannot be opened)
  • Adjustable air conditioning with thermostat
  • Flat screen interactive satellite TV
  • Hairdryer
  • Safe (height 26 cm | width 35 cm | depth 25 cm)
  • Wi-Fi connection (fees apply)
  • Toiletries
  • Linen required for your stay (sheets and towels)
  • Beach and pool towel
  • Sockets for power supply 220–110 Volt / 60 Hz

Size, layout, and furnishings may vary slightly within this cabin category.

E2 Oceanview, Decks 1-2, 6-7, 9-11
Shower Bath
Free Food

  • Size: 13 m²-19 m², сabin with sea view , Decks 1-2, 6-7, 9-11
  • Up to 4 beds
  • Private bathroom with shower
  • 1 double bed (or 2 single beds), 1 sofa bed. 2 high folding beds are available for 3rd/4th guests. (DORELAN mattresses)
  • Window (cannot be opened)
  • Adjustable air conditioning with thermostat
  • Flat screen interactive satellite TV
  • Hairdryer
  • Safe (height 26 cm | width 35 cm | depth 25 cm)
  • Wi-Fi connection (fees apply)
  • Toiletries
  • Linen required for your stay (sheets and towels)
  • Beach and pool towel
  • Sockets for power supply 220–110 Volt / 60 Hz

Size, layout, and furnishings may vary slightly within this cabin category.

B1 BALCONY, Decks 6-7
Shower Bath
Free Food

  • Size: 13-16 sq. m, Sea Balcony, Deck 6–7
  • Up to 4 beds
  • Private bathroom with shower
  • 1 double bed (or 2 single beds), 1 single sofa bed. 1 high folding bed available for 4th guest. (DORELAN mattresses)
  • Private balcony
  • Adjustable air conditioning with thermostat
  • Flat screen interactive satellite TV
  • Hairdryer
  • Safe (height 26 cm | width 35 cm | depth 25 cm)
  • Wi-Fi connection (fees apply)
  • Toiletries
  • Linen required for your stay (sheets and towels)
  • Beach and pool towel
  • Sockets for power supply 220–110 Volt / 60 Hz

Size, layout, and furnishings may slightly differ from images (within the cabin category).

B2 BALCONY, Decks 6-10
Shower Bath
Free Food

  • Size: 13-16 sq. m, Sea Balcony, Deck 6–10
  • Up to 4 beds
  • Private bathroom with shower
  • 1 double bed (or 2 single beds), 1 single sofa bed. 1 high folding bed available for 4th guest. (DORELAN mattresses)
  • Private balcony
  • Adjustable air conditioning with thermostat
  • Flat screen interactive satellite TV
  • Hairdryer
  • Safe (height 26 cm | width 35 cm | depth 25 cm)
  • Wi-Fi connection (fees apply)
  • Toiletries
  • Linen required for your stay (sheets and towels)
  • Beach and pool towel
  • Sockets for power supply 220–110 Volt / 60 Hz

Size, layout, and furnishings may slightly differ from images (within the cabin category).

B3 BALCONY, Decks 8-10
Shower Bath
Free Food

  • Size: 14-16 sq. m, Sea Balcony, Deck 8–10
  • Up to 4 beds
  • Private bathroom with shower
  • 1 double bed (or 2 single beds), 1 single sofa bed. 1 high folding bed available for 4th guest. (DORELAN mattresses)
  • Private balcony
  • Adjustable air conditioning with thermostat
  • Flat screen interactive satellite TV
  • Hairdryer
  • Safe (height 26 cm | width 35 cm | depth 25 cm)
  • Wi-Fi connection (fees apply)
  • Toiletries
  • Linen required for your stay (sheets and towels)
  • Beach and pool towel
  • Sockets for power supply 220–110 Volt / 60 Hz

Size, layout, and furnishings may slightly differ from images (within the cabin category).

MS MINI SUITE with Balcony, Decks 6-8
Shower Bath
Free Food

  • Size: 15-23 sq. m, Mini Suite with Balcony on decks  6-8
  • Separate bathroom with shower and bathtub
  • Up to 2 sleeping places
  • 1 double bed (or 2 single beds); for 3rd/4th guest — single or double sofa bed (DORELAN mattresses)
  • Spacious private balcony
  • Personal butler to unpack your luggage and arrange services (available daily from 07:00 to 22:00)
  • Complimentary bottle of sparkling wine
  • Lunch and dinner with full privacy
  • Toiletries set and soft terry bathrobe
  • Air conditioning with thermostat
  • Interactive flat-screen TV with satellite channels
  • Hairdryer
  • Safe (height 26 cm | width 35 cm | depth 25 cm)
  • Wi‑Fi connection (fees apply)
  • Bed linen and towels provided
  • Beach and bath towel
  • Power outlets: 220–110 V / 60 Hz
  • Aroma diffuser (Samsara cabins only)
  • Electric kettle with selection of aromatic teas (Samsara cabins only)
  • In-shower filter (Samsara cabins only)

Size, layout, and furnishings may slightly vary from those shown (within this cabin category).

Andromeda (deck 1)
Cassiopea (deck 2)
Aries (deck 3)
Orion (deck 4)
Gemini (deck 5)
Centaurus (deck 6)
Acquarius (deck 7)
Perseus (deck 8)
Libra (deck 9)
Taurus (deck 10)
Virgo (deck 11)
Pegasus (deck 12)
Vela (deck 14)

On board Costa Serena, every day becomes a vibrant and exciting adventure:

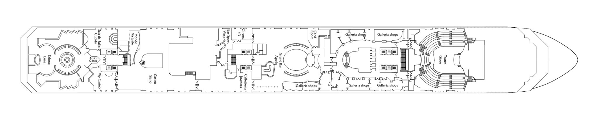
  • Evening shows and concerts – enjoy theatrical performances, live music, and dance shows at the three-tiered Jupiter Theatre.
  • Casino – feel the thrill and try your luck in a modern casino right in the middle of the ocean.
  • Disco – dance to energetic beats at Pan Disco and spend your evenings in a lively atmosphere.
  • Spa and relaxation areas – unwind in saunas and Turkish baths, swim in seawater pools, and indulge in rejuvenating treatments at Samsara Spa.
  • Fitness center with a sea view – stay in shape and recharge your energy while working out with panoramic views of the ocean.
  • Pools and jacuzzis – four swimming pools, including covered ones with retractable roofs, and five outdoor jacuzzis for relaxation and fun.
  • Water park and kids’ clubs – games, water attractions, and creative activities for young travelers.
  • Gastronomic experiences – savor exquisite dishes at Club Bacco and Samsara restaurants and enjoy diverse international cuisine.
  • Shops and boutiques – stylish shopping on board without leaving the ship, including fashion, souvenirs, and premium items.
  • My Tours excursions – exciting trips and discoveries at every port of call.
  • “My Moments” photo studio – capture the happiest and most memorable moments of your journey.

A cruise on Costa Serena turns every day into a celebration. Explore new horizons, enjoy every moment, and let the sea create unforgettable memories.

Family Fun and Kids’ Clubs on board Costa Serena

On board Costa Serena, young guests can enjoy exciting programs organized by professional animators. Participation in the kids’ clubs is free. Children must be registered on the first day of the cruise to attend the clubs.

Mini Club for children aged 3 to 6 and Maxi Club for children aged 7 to 11 feature dedicated play areas and pools on board. Clubs operate in the morning, afternoon, and evening. Parents can choose the “Parents on excursions, kids in the club” option, allowing children to have fun under professional supervision.

Programs for teenagers aged 12–14 and youth aged 15–17 help make new friends and take part in sports, creative, and social activities. Clubs operate daily from 9:00 to 12:00, 15:00 to 18:00, and 21:00 to 23:30.

For infants aged 6 months to 2 years, the nursery can only be visited with adult supervision. The ship is ideal for families with small children and strollers: spacious elevators, comfortable cabins, wide decks, and pleasant walking routes ensure a stress-free experience.

Additional family amenities:

  • Baby cots and cradles.
  • Bathtubs and the possibility to prepare baby food in the cabin.
  • High chairs in restaurants, bottle warmers, and special kids’ menus.
  • Personal nanny services available on request for an extra fee.

A holiday on Costa Serena creates memorable and safe experiences for children while giving parents peace of mind. The cruise becomes unforgettable for the whole family!

Culinary Delights on Board Costa Serena

Immerse yourself in a world of exquisite flavors and aromas on board Costa Serena, where every meal becomes a true culinary journey.

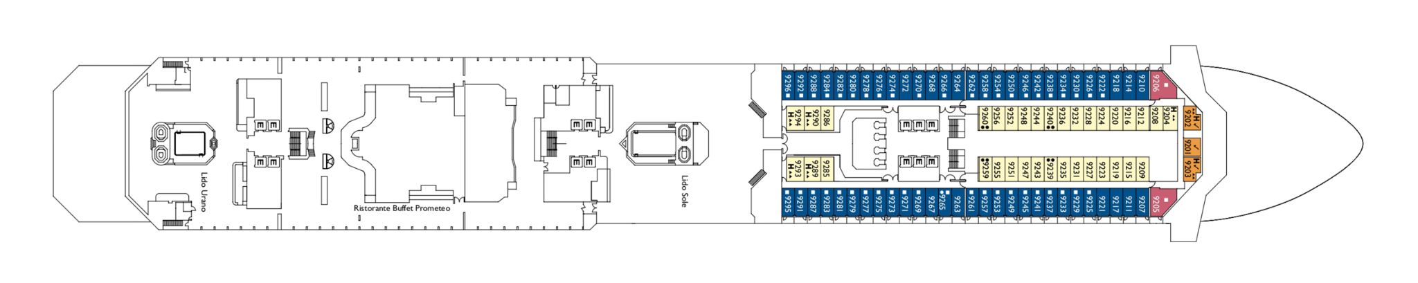
Costa Serena has 8 restaurants and snack bars.

Main Restaurants:

  • Ristorante Vesta – the main restaurant offering Italian and international cuisine. Breakfast and lunch are served buffet-style, while dinner is offered in two seatings at approximately 6:30 PM and 9:00 PM.
  • Ristorante Ceres – another main restaurant with a varied à la carte menu.

Alternative Restaurants (reservation and additional charge required):

  • Ristorante Samsara – located on the Aries deck, offering light and healthy dishes prepared with special ingredients and modern culinary techniques.
  • Club Bacco – an à la carte restaurant with gourmet cuisine and exclusive service.

Buffet:

  • Prometeo – located on the Libra deck, offering a wide selection of hot and cold dishes, including pasta, pizza, salads, and fresh fruits.

During main meals, drinks including water, tea, coffee, and juices are included in the cruise fare.Other beverages are charged separately or may be included in special beverage packages.

Bars and Lounges:

The ship features 10 bars and lounges, including Grand Bar Apollo, Salone Luna, and others, where guests can enjoy their favorite drinks in a cozy atmosphere.

On board Costa Serena, light snacks by the pool, cocktails, and gourmet dinners in the restaurants make every moment of the cruise a true culinary discovery.

On board Costa Serena, it is recommended to have three types of clothing: casual and sportswear for walks and activities, comfortable and weather-appropriate outfits for excursions, as well as more elegant attire for the evening in smart casual and formal styles.

On days of official dinners and special events, cocktail dresses for women and suits with ties for men are encouraged. Evening shows, fine dining in restaurants, bars, and lounges create an atmosphere of style and celebration where a refined look is appropriate. For daytime relaxation and walks, beachwear such as shorts, flip-flops, or sneakers is suitable.

Having the appropriate style in your wardrobe helps create comfort and an atmosphere of lightness, joy, and vivid impressions that will stay with you throughout the cruise!